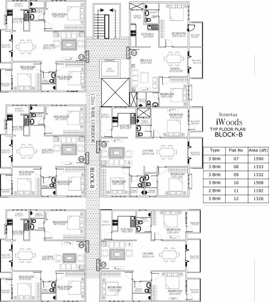
2,3 BHK Apartment
1,047 - 1,774 sq ft



Nirman Sonestaa is one of the reputed property developer and is extremely versatile to developing property suiting the ever evolving and dynamic desires of the real estate market.Nirman Sonestaa has introduced its residential project I Woods that is a benchmark in property market and strategically nestled at Bellandur Bangalore.








