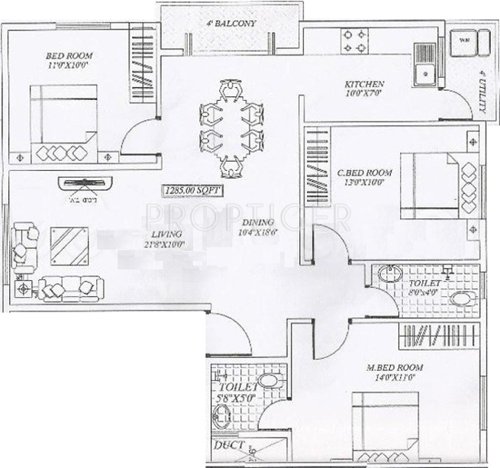
2,3 BHK Apartment
1,100 - 1,285 sq ft



It offers 2, 3 BHK Apartment in Bangalore East. The project is Completed project and possession in Mar 12. Among the many luxurious amenities that the project boasts are Covered Car Parking, Intercom, Rain Water Harvesting, Landscaped Gardens, Children's play area etc.








