
PROJECT RERA ID : Rera Not Applicable
Jai Bhuvana Flatsby Jai Homes
₹ 92.00 L - ₹ 1.08 Cr
Builder Price
See inclusions
2, 3 BHK
Apartment
830 - 990 sq ft
Builtup area
Project Location
Adambakkam, Chennai
Overview
- Jun'25Possession Start Date
- CompletedStatus
- 6Total Launched apartments
- Sep'24Launch Date
- New and ResaleAvailability
More about Jai Bhuvana Flats
.
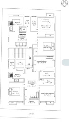
Jai Bhuvana Flats Floor Plans
- 2 BHK
- 3 BHK
| Floor Plan | Area | Agreement Price |
|---|---|---|
![]() | 830 sq ft (2BHK+2T) | ₹ 92.00 L |
Report Error
Our Picks
- PriceConfigurationPossession
- Current Project
Jai Bhuvana Flatsby Jai HomesAdambakkam, Chennai₹ 92.00 L - ₹ 1.08 Cr2,3 BHK Apartment830 - 990 sq ftJun '25 - Recommended
Shriram Park 63 Phase 3by Shriram Properties Ltd ChennaiVelachery, ChennaiData Not Available2,3 BHK Apartment710 - 1,399 sq ftAug '22 - Recommended
Excellence Phase 1 by Urban Treeby Urban Tree Real Estate Developers LLPManapakkam, Chennai₹ 78.00 L - ₹ 1.58 Cr2,3,4 BHK Apartment1,061 - 2,153 sq ftSep '27
Jai Bhuvana Flats Amenities
- Car Parking
- 24X7 Water Supply
- Rain Water Harvesting
- Gated Community
- 24 X 7 Security
- 24x7 CCTV Surveillance
- Intercom
- Fire Fighting System
Jai Bhuvana Flats Specifications
Flooring
Kitchen:
Vitrified Tiles
Living/Dining:
Vitrified Tiles
Master Bedroom:
Vitrified Tiles
Other Bedroom:
Vitrified Tiles
Toilets:
Anti Skid Ceramic Tiles
Others
Wiring:
Concealed Copper Wiring with Adequate Points
Points:
Kitchen
Switches:
Modular electrical switches
Frame Structure:
Earthquake resistant RCC framed structure
Gallery
Jai Bhuvana FlatsElevation
Jai Bhuvana FlatsFloor Plans
Contact NRI Helpdesk on
Whatsapp(Chat Only)
Whatsapp(Chat Only)
+91-96939-69347
Contact Helpdesk on
Whatsapp(Chat Only)
Whatsapp(Chat Only)
+91-96939-69347
About Jai Homes
Jai Homes
- 3
Total Projects - 2
Ongoing Projects - RERA ID
Similar Projects
- PT ASSIST
Shriram Shriram Park 63 Phase 3by Shriram Properties Ltd ChennaiVelachery, ChennaiPrice on request - PT ASSIST
Urban Excellence Phase 1 by Urban Treeby Urban Tree Real Estate Developers LLPManapakkam, Chennai₹ 78.00 L - ₹ 1.58 Cr - PT ASSIST
Puravankara Somerset Houseby Puravankara LimitedGuindy, Chennai₹ 3.36 Cr - ₹ 7.24 Cr - PT ASSIST
Lancor Infinysby Lancor HoldingsKeelkattalai, Chennai₹ 1.11 Cr - ₹ 2.55 Cr - PT ASSIST
Appaswamy Parkhouse Mewsby Appaswamy Real EstatesGuindy, Chennai₹ 3.21 Cr - ₹ 4.43 Cr
Discuss about Jai Bhuvana Flats
comment
Disclaimer
PropTiger.com is not marketing this real estate project (“Project”) and is not acting on behalf of the developer of this Project. The Project has been displayed for information purposes only. The information displayed here is not provided by the developer and hence shall not be construed as an offer for sale or an advertisement for sale by PropTiger.com or by the developer.
The information and data published herein with respect to this Project are collected from publicly available sources. PropTiger.com does not validate or confirm the veracity of the information or guarantee its authenticity or the compliance of the Project with applicable law in particular the Real Estate (Regulation and Development) Act, 2016 (“Act”). Read Disclaimer
The information and data published herein with respect to this Project are collected from publicly available sources. PropTiger.com does not validate or confirm the veracity of the information or guarantee its authenticity or the compliance of the Project with applicable law in particular the Real Estate (Regulation and Development) Act, 2016 (“Act”). Read Disclaimer


















