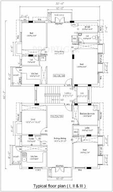
2 BHK Apartment
On request



India has launched its premium housing project, The Eastern Edifice, in Anna Nagar, Chennai. Among the many luxurious amenities that the project hosts are Children's play area, 24 X 7 Security, Wifi, Landscaped Gardens etc. India The Eastern Edifice is Completed project and possession in Mar 08.








