


- Possession Start DateDec'15
- StatusCompleted
- Total Launched apartments4
- Launch DateJan'15
- AvailabilityResale
More about RAS Constructions Kodambakkam
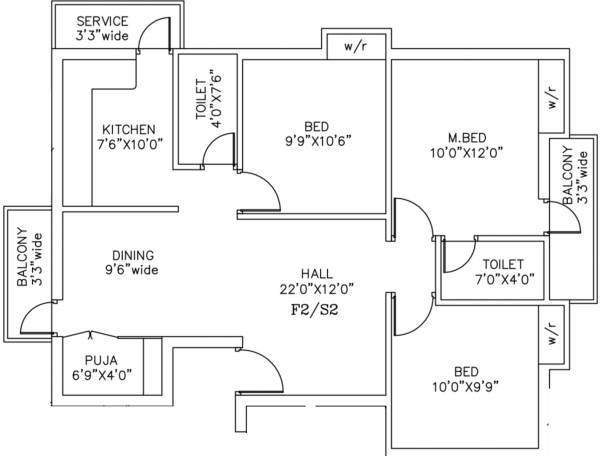
RAS Constructions has launched a new project at Kodambakkam in Chennai. The buyers are offered apartments with configurations of 3 BHK. It is available only from the developer. These premium apartments are designed in a comfortable and efficient manner. The amenities include 24x7 security services, an elevator, closed car parking areas, etc. The Chennai Central Railway Station is at a distance of 8.9 kilometres, while the Chennai International Airport lies 11.2 kilometres from this locality. The...View more
![HDFC (5244) HDFC (5244)]()
![Axis Bank Axis Bank]()
![PNB Housing PNB Housing]()
![Indiabulls Indiabulls]()
![Citibank Citibank]()
![DHFL DHFL]()
![L&T Housing (DSA_LOSOT) L&T Housing (DSA_LOSOT)]()
![IIFL IIFL]()
- + 3 more banksshow less
Project Specifications
- 3 BHK
- 24 X 7 Security
- Lift Available
- Closed Car Parking
- Common Lights
- 24X7 Water Supply
- Paved Compound
- Water Storage
RAS Constructions Kodambakkam Gallery
Payment Plans

About RAS Constructions

- Years of experience35
- Total Projects6
- Ongoing Projects0



























