


- Possession Start DateSep'09
- StatusCompleted
- Total Launched apartments8
- AvailabilityResale
Salient Features
- Known for amenities like landscaped gardens, swimming pool, olympic size swimming pool, tree plantation, rainwater harvesting, children play area
- Accessibility to key landmarks
- Schools, banks within close vicinity
More about Pushkar The Water Front
Korattur in Chennai has a ready to move in project of great apartments by the Pushkar the Water Front Company. The neighbourhood is well settled with high school, bank, primary school, play school, atm, hospital, office complex, play school, bus stand, and restaurant etc facilities near at hand. Other amenities that this project offers are a community with gates, a nice landscape, well maintained sewage lines, gym, rain water harvesting system, security service, there is an availability of parki...View more
![HDFC (5244) HDFC (5244)]()
![Axis Bank Axis Bank]()
![PNB Housing PNB Housing]()
![Indiabulls Indiabulls]()
![Citibank Citibank]()
![DHFL DHFL]()
![L&T Housing (DSA_LOSOT) L&T Housing (DSA_LOSOT)]()
![IIFL IIFL]()
- + 3 more banksshow less
Project Specifications
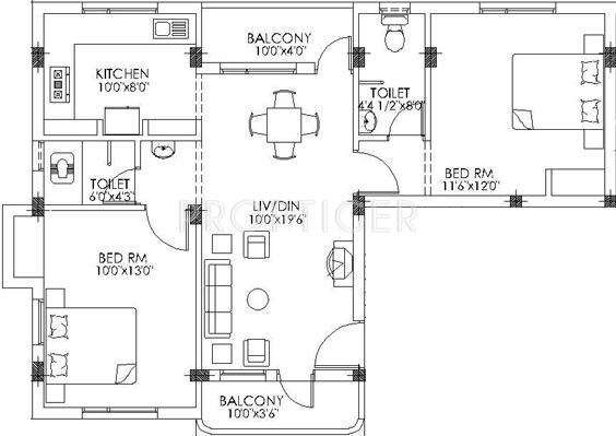
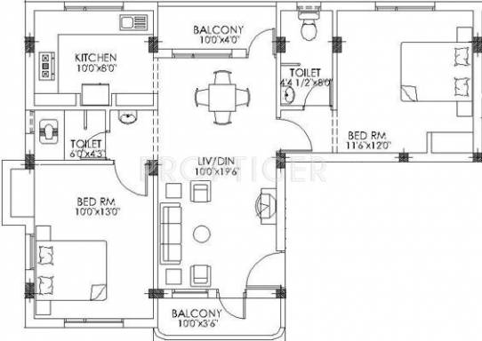
- 2 BHK
- Children's play area
- Rain Water Harvesting System
- Intercom Facility
- Security System
- 24Hr Backup
- Maintenance Staff
- Landscape Garden and Tree Planting
Pushkar The Water Front Gallery
About Pushkar Properties

- Years of experience24
- Total Projects121
- Ongoing Projects17
























