
HM Apartmentsby HM Homes
Price on request
Builder Price
2, 3, 4 BHK
Apartment
853 - 1,570 sq ft
Builtup area
Project Location
Mugalivakkam, Chennai
Overview
- May'14Possession Start Date
- CompletedStatus
- 11Total Launched apartments
- May'12Launch Date
- ResaleAvailability
More about HM Apartments
HM Homes has launched its premium housing project, Apartments, in Mugalivakkam, Chennai. The project offers 2, 3, 4 BHK Apartment from 853 sqft to 1570 sqft in Chennai West. Among the many luxurious amenities that the project hosts are Car Parking, Power Backup, Water Storage, Rain Water Harvesting, Drainage System etc. HM Homes Apartments is Completed project and possession in Jun 14.
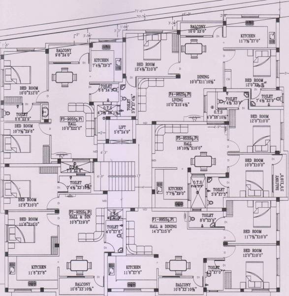
HM Apartments Floor Plans
- 2 BHK
- 3 BHK
- 4 BHK
Report Error
Our Picks
- PriceConfigurationPossession
- Current Project
HM Apartmentsby HM HomesMugalivakkam, ChennaiData Not Available2,3,4 BHK Apartment853 - 1,570 sq ftMay '14 - Recommended
Flatsby Thanu FoundationPorur, ChennaiData Not Available2 BHK Apartment1,014 - 1,030 sq ftJul '22 - Recommended
Sahanaby Kaaviya PropertiesPorur, Chennai₹ 80.26 L - ₹ 1.20 Cr2,3 BHK Apartment1,056 - 1,573 sq ftJul '18
HM Apartments Amenities
- Rain Water Harvesting
- Car Parking
- Power Backup
- Drainage System
- Vaastu Compliant
- Water Storage
Gallery
HM ApartmentsElevation
HM ApartmentsFloor Plans
Contact NRI Helpdesk on
Whatsapp(Chat Only)
Whatsapp(Chat Only)
+91-96939-69347
Contact Helpdesk on
Whatsapp(Chat Only)
Whatsapp(Chat Only)
+91-96939-69347
About HM Homes

- 27
Years of Experience - 3
Total Projects - 0
Ongoing Projects - RERA ID
Hm homes has completed more than construction projects in Chennai. Construction work is included some major work like building renovation, interior decoration, constructing design and more. Building construction in Chennai for all kinds of civil work for individual houses. We are concentrating to deliver the quality service for our clients as per their requirements. Project plan and budget is very important to begin the building constructing. Most of the construction companies start the work in ... read more
Similar Projects
- PT ASSIST
Thanu Flatsby Thanu FoundationPorur, ChennaiPrice on request - PT ASSIST
Kaaviya Sahanaby Kaaviya PropertiesPorur, Chennai₹ 80.26 L - ₹ 1.20 Cr - PT ASSIST
Green The Palmsby Green Leaves EstatesValasaravakkam, ChennaiPrice on request - PT ASSIST
DRA Infiniqueby DRA Homes ChennaiValasaravakkam, Chennai₹ 2.26 Cr - ₹ 2.64 Cr - PT ASSIST
GR Porurby GR Builders ChennaiPorur, Chennai₹ 94.60 L - ₹ 1.10 Cr
Discuss about HM Apartments
comment
Disclaimer
PropTiger.com is not marketing this real estate project (“Project”) and is not acting on behalf of the developer of this Project. The Project has been displayed for information purposes only. The information displayed here is not provided by the developer and hence shall not be construed as an offer for sale or an advertisement for sale by PropTiger.com or by the developer.
The information and data published herein with respect to this Project are collected from publicly available sources. PropTiger.com does not validate or confirm the veracity of the information or guarantee its authenticity or the compliance of the Project with applicable law in particular the Real Estate (Regulation and Development) Act, 2016 (“Act”). Read Disclaimer
The information and data published herein with respect to this Project are collected from publicly available sources. PropTiger.com does not validate or confirm the veracity of the information or guarantee its authenticity or the compliance of the Project with applicable law in particular the Real Estate (Regulation and Development) Act, 2016 (“Act”). Read Disclaimer






























