India's best property portal to buy property in India - Proptiger.com
Possession : Dec'15
AK Maple
Price on request
Builder Price
Configuration
2, 3 BHK
Builtup area1 sq M = 10.76 sq ft
819 - 1,098 sq ft
Possession Status
Completed
Overview
  • Possession Start Date
    Dec'15
  • Status
    Completed
  • Total Launched apartments
    4
  • Launch Date
    Feb'15
  • Availability
    Resale

Project Specifications

Doors
Internal:
Flush Shutters
Main:
Teak Wood Frame
Flooring
Kitchen:
Vitrified Tiles
Master Bedroom:
Vitrified Tiles
Toilets:
Anti Skid Ceramic Tiles
Living/Dining:
Vitrified tiles
Other Bedroom:
Vitrified tiles
Walls
Interior:
Plastic Emulsion Paint
Exterior:
Cement Based Paint
Kitchen:
Designer Tiles Dado
Toilets:
Designer Tiles Dado up to 7 Feet Height Above Platform
Others
Windows:
UPVC
Wiring:
Concealed Copper Wiring
Switches:
Anchor/Roma Switches
Points:
Other Bedroom
Fittings
Toilets:
CP Fittings
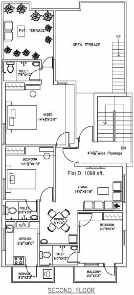
AK Maple Floor Plans
  • 2 BHK
  • 3 BHK
-
-
AK Maple Amenities

About A K Constructions

A K Constructions
  • Years of experience32
  • Total Projects1
  • Ongoing Projects0

More projects by A K Constructions

Similar Projects

Developer Network

  • 400+
    Reputed Developers