


- Possession Start DateFeb'18
- StatusCompleted
- Total Launched apartments18
- Launch DateMar'14
- AvailabilityResale
More about Dhanam Sun Court Aparment
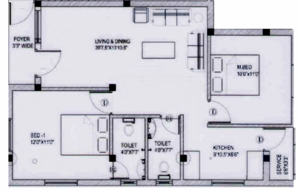
Dhanam Foundation Sun Court Apartment offers to buyers 3, 1 and 2 BHK in Tambaram, Chennai. The prices of the flats vary from 17.9 to 38.4 lakh. The community is under construction and the units are available through the developer. The total units on sale are 18, each measuring from 558 to 1200 sq. ft. The community has a jogging track apart from essential amenities like power back up and round the clock security. Dhanam Foundation has worked on two projects, which are both under construction. T...View more
![HDFC (5244) HDFC (5244)]()
![Axis Bank Axis Bank]()
![PNB Housing PNB Housing]()
![Indiabulls Indiabulls]()
![Citibank Citibank]()
![DHFL DHFL]()
![L&T Housing (DSA_LOSOT) L&T Housing (DSA_LOSOT)]()
![IIFL IIFL]()
- + 3 more banksshow less
Project Specifications
- 1 BHK
- 2 BHK
- 3 BHK
- 24 X 7 Security
- Jogging Track
- Power Backup
- Car Parking
Dhanam Sun Court Aparment Gallery

About Dhanam Foundation

- Total Projects2
- Ongoing Projects0





















