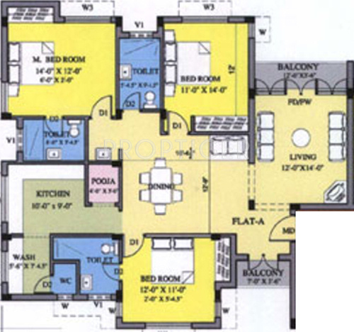
3 BHK Apartment
1,775 - 1,825 sq ft



Launched by Silpi, Springfield, is a premium housing project located at Perungudi in Chennai. Offering 3 BHK Apartment in OMR are available from 1775 sqft to 1825 sqft. This project hosts amenities like Car Parking etc. The project is Completed project and possession in May 07.
