India's best property portal to buy property in India - Proptiger.com
Possession : Jan'24
GJ Meenakshi Illam
₹ 50.05 L - ₹ 58.00 L
Builder Price
Home Loan EMI starts at ₹ 38,806
Configuration
2, 3 BHK
Builtup area1 sq M = 10.76 sq ft
863 - 1,000 sq ft
Possession Status
Under Construction
Avg. Price
₹ 5,800 sq.ft
Overview
  • Possession Start Date
    Jan'24
  • Status
    Under Construction
  • Total Launched apartments
    6
  • Availability
    New and Resale

More about GJ Meenakshi Illam

.

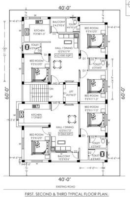
GJ Meenakshi Illam Floor Plans
  • 2 BHK
  • 3 BHK
₹ 50.05 L
₹ 58.00 L
GJ Meenakshi Illam Amenities

About GJ Constructions

  • Total Projects3
  • Ongoing Projects1

More projects by GJ Constructions

Similar Projects

Developer Network

  • 400+
    Reputed Developers