India's best property portal to buy property in India - Proptiger.com
Possession : Feb'24
Rera
NGB Lush
Price on request
Builder Price
Configuration
3 BHK
Builtup area1 sq M = 10.76 sq ft
3,200 - 6,400 sq ft
Possession Status
Completed
Overview
  • Possession Start Date
    Feb'24
  • Status
    Completed
  • Total Area
    2.3 Acres
  • Total Launched apartments
    5
  • Launch Date
    Feb'23
  • Availability
    Resale
  • RERA ID
    RERA Not Applicable
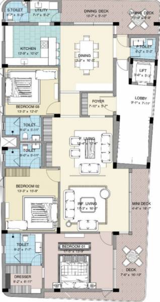
NGB Lush Floor Plans
  • 3 BHK
-
NGB Lush Amenities

About NGB Group

NGB Group
  • Total Projects4
  • Ongoing Projects1

More projects by NGB Group

Similar Projects

Developer Network

  • 400+
    Reputed Developers