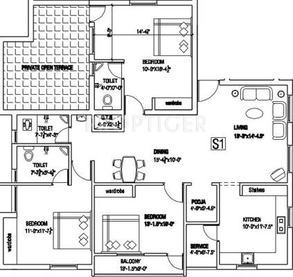
2,3 BHK Apartment
844 - 1,580 sq ft



Located in Thiruvanmiyur, Chennai, Vikruthi is a premium housing project launched by Shrusti. The project offers Apartment in 2, 3 BHK configurations available from 844 sqft to 1580 sqft. The project is Completed project and possession in Jul 12.








