India's best property portal to buy property in India - Proptiger.com
Possession : Feb'11
Aditya Gold Crest
Price on request
Builder Price
Configuration
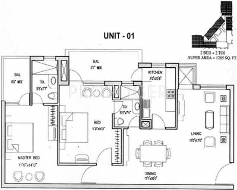
2 BHK
Builtup area1 sq M = 10.76 sq ft
1,285 sq ft
Possession Status
Completed
Overview
  • Possession Start Date
    Feb'11
  • Status
    Completed
  • Availability
    Resale

More about Aditya Gold Crest

Approved for Home loans from following banks
  • HDFC (5244)
  • SBI - DEL02592587P
  • ICICI(324590/324591)
  • Indiabulls

Project Specifications

Doors
Internal:
Flush Shutters
Flooring
Balcony:
Vitrified Tiles
Kitchen:
Vitrified Tiles
Living/Dining:
Vitrified Tiles
Master Bedroom:
Wooden Flooring
Other Bedroom:
Vitrified Tiles
Toilets:
Anti Skid Tiles
Walls
Interior:
Oil Bound Distemper
Kitchen:
Glazed Tiles Dado up to 2 Feet Height Above Platform
Exterior:
Texture Paint
Others
Windows:
Teak Wood Frame
Fittings
Kitchen:
Granite Platform with Stainless Steel Sink
Toilets:
ISI Branded Chromium Plated Tap
Aditya Gold Crest Floor Plans
  • 2 BHK
-
Aditya Gold Crest Amenities

About Aditya GZB

Aditya GZB
  • Years of experience47
  • Total Projects29
  • Ongoing Projects1
Located opposite to the Wave City, Aditya World City is a self-supportable and coordinated township situated at the National Highway 24 Ghaziabad. Aditya World City offers 1/2/3 BHK apartments at reasonable price. Unique Selling Point Aditya GZB in Noida, Ghaziabad is a township spread across 185 acres of land. It is known for its quality business buildings and shopping malls that consolidate the triple improvement of the prime area, best deal offers and value for money. At the most fundamental ...
View more

More projects by Aditya GZB

Developer Network

  • 400+
    Reputed Developers