
PROJECT RERA ID : Rera Not Applicable
Trident Grande
Price on request
Builder Price
2, 3 BHK
Apartment
1,364 - 1,899 sq ft
Builtup area
Project Location
Kompally, Hyderabad
Overview
- Nov'13Possession Start Date
- CompletedStatus
- 117Total Launched apartments
- Apr'11Launch Date
- ResaleAvailability
Salient Features
- 3 open side properties, spacious properties
- Swimming pool, landscape garden, children play area, rainwater harvesting
- It also offers services like banquet hall, grocery shop and library
- The project is vaastu complaint
- It also offers car parking
More about Trident Grande
Trident Grande residences offer you with much desired custom made indulgence, superior lifestyle and the rare luxury space. Trident Grande having the compact lifestyle with all facilities and world’s top notch amenities your heart could desire.
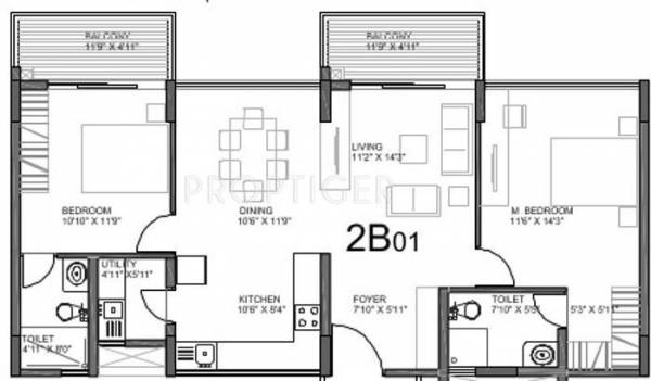
Trident Grande Floor Plans
- 2 BHK
- 3 BHK
| Floor Plan | Area | Builder Price |
|---|---|---|
![]() | 1364 sq ft (2BHK+2T) | - |
![]() | 1432 sq ft (2BHK+2T + Study Room) | - |
![]() | 1446 sq ft (2BHK+2T + Study Room) | - |
Report Error
Our Picks
- PriceConfigurationPossession
- Current Project
Trident Grandeby Trident PropertiesKompally, HyderabadData Not Available2,3 BHK Apartment1,364 - 1,899 sq ftNov '13 - Recommended
Eco Nestby Primark DevelopersKompally, Hyderabad₹ 57.99 L - ₹ 1.08 Cr2,3 BHK Apartment1,160 - 2,165 sq ftSep '27 - Recommended
Home Treeby ManbhumJeedimetla, Hyderabad₹ 71.87 L - ₹ 1.06 Cr2,3 BHK Apartment1,198 - 1,771 sq ftDec '26
Trident Grande Amenities
- Gymnasium
- Swimming Pool
- Intercom
- 24 X 7 Security
- Power Backup
- Indoor Games
- Banquet Hall
- Tennis Court
Trident Grande Specifications
Doors
Internal:
Flush Shutters
Main:
Teak Wood Frame
Flooring
Toilets:
Ceramic Tiles
Balcony:
Ceramic Tiles
Living/Dining:
Vitrified Tiles
Master Bedroom:
Vitrified Tiles
Other Bedroom:
Vitrified Tiles
Kitchen:
Vitrified Tiles
Gallery
Trident GrandeElevation
Trident GrandeAmenities
Trident GrandeFloor Plans
Trident GrandeNeighbourhood
Trident GrandeOthers
Contact NRI Helpdesk on
Whatsapp(Chat Only)
Whatsapp(Chat Only)
+91-96939-69347
Contact Helpdesk on
Whatsapp(Chat Only)
Whatsapp(Chat Only)
+91-96939-69347
About Trident Properties

- 4
Total Projects - 0
Ongoing Projects - RERA ID
Similar Projects
- PT ASSIST
Primark Eco Nestby Primark DevelopersKompally, Hyderabad₹ 57.99 L - ₹ 1.08 Cr - PT ASSIST
Manbhum Home Treeby ManbhumJeedimetla, Hyderabad₹ 71.87 L - ₹ 1.06 Cr - PT ASSIST
Maheshwari Shree Indira Sadanby Maheshwari ConstructionsAlwal, HyderabadPrice on request - PT ASSIST
BJ Anu Recidencyby BJ ConstructionAlwal, HyderabadPrice on request - PT ASSIST
Asbl Landmarkby ASBLKukatpally, Hyderabad₹ 1.32 Cr - ₹ 2.29 Cr
Discuss about Trident Grande
comment
Disclaimer
PropTiger.com is not marketing this real estate project (“Project”) and is not acting on behalf of the developer of this Project. The Project has been displayed for information purposes only. The information displayed here is not provided by the developer and hence shall not be construed as an offer for sale or an advertisement for sale by PropTiger.com or by the developer.
The information and data published herein with respect to this Project are collected from publicly available sources. PropTiger.com does not validate or confirm the veracity of the information or guarantee its authenticity or the compliance of the Project with applicable law in particular the Real Estate (Regulation and Development) Act, 2016 (“Act”). Read Disclaimer
The information and data published herein with respect to this Project are collected from publicly available sources. PropTiger.com does not validate or confirm the veracity of the information or guarantee its authenticity or the compliance of the Project with applicable law in particular the Real Estate (Regulation and Development) Act, 2016 (“Act”). Read Disclaimer










































