
PROJECT RERA ID : Rera Not Applicable
Aakruthi Shantiniketan
Price on request
Builder Price
3 BHK
Villa
2,220 - 2,980 sq ft
Builtup area
Project Location
Medchal, Hyderabad
Overview
- Dec'15Possession Start Date
- CompletedStatus
- 50Total Launched villas
- Dec'09Launch Date
- ResaleAvailability
Salient Features
- Smart homes, spacious properties, luxurious properties, intelligent home access control
- Aakruthi shanthiniketan offers facilities such as gymnasium
- It also has amenities like ,swimming pool, basketball court and jogging track
- It also offers services like garbage disposal
- It also offers car parking
- The project is vastu complaint
More about Aakruthi Shantiniketan
Shantiniketan, a residential concept of community living, is a widely spread residential project by Aakruthi Developers. Aakruthi Developers is India's premier real estate and infrastructure development company. Shantiniketan is located at Kompally, Hyderabad; offering a blessed nature friendly lifestyle in the heart of the City. Shantiniketan is offering a beautiful lifestyle in their 3BHK Villas with a herd of amenities.
Approved for Home loans from following banks
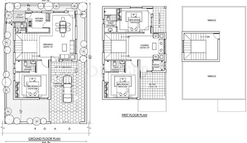
Aakruthi Shantiniketan Floor Plans
- 3 BHK
| Floor Plan | Area | Builder Price |
|---|---|---|
![]() | 2220 sq ft (3BHK+3T) | - |
2665 sq ft (3BHK+3T) | - | |
![]() | 2980 sq ft (3BHK+4T Study Room) | - |
Report Error
Our Picks
- PriceConfigurationPossession
- Current Project
Aakruthi Shantiniketanby Aakruthi DeveloperMedchal, HyderabadData Not Available3 BHK Villa2,220 - 2,980 sq ftDec '15 - Recommended
Eco Nestby Primark DevelopersKompally, Hyderabad₹ 57.99 L - ₹ 1.08 Cr2,3 BHK Apartment1,160 - 2,165 sq ftSep '27 - Recommended
Home Treeby ManbhumJeedimetla, Hyderabad₹ 71.87 L - ₹ 1.06 Cr2,3 BHK Apartment1,198 - 1,771 sq ftDec '26
Aakruthi Shantiniketan Amenities
- Intercom
- 24 X 7 Security
- Power Backup
- Swimming_Pool
- Basketball Court
- Amphitheater
- Gated Community
- Vaastu Compliant
Aakruthi Shantiniketan Specifications
Doors
Main:
Teak Wood Frame and Shutter
Flooring
Kitchen:
Ceramic tiles
Living/Dining:
Marble Granite Tiles
Master Bedroom:
Marble Granite Tiles
Other Bedroom:
Marble Granite Tiles
Toilets:
Ceramic Tiles
Gallery
Aakruthi ShantiniketanElevation
Aakruthi ShantiniketanFloor Plans
Aakruthi ShantiniketanOthers
Contact NRI Helpdesk on
Whatsapp(Chat Only)
Whatsapp(Chat Only)
+91-96939-69347
Contact Helpdesk on
Whatsapp(Chat Only)
Whatsapp(Chat Only)
+91-96939-69347
About Aakruthi Developer

- 4
Total Projects - 2
Ongoing Projects - RERA ID
Aakruthi Developers was started by visionary entrepreneurs widely experienced in the field of real estate development. With our impeccable services backed by our solid past record now you too can own your dream house. We assure you of getting the best possible housing facilities in the best possible location and for the best possible price. With a great amalgamation of the best location, design , quality and affordability, your dream house is now within you reach at our sprawling new housing com... read more
Similar Projects
- PT ASSIST
Primark Eco Nestby Primark DevelopersKompally, Hyderabad₹ 57.99 L - ₹ 1.08 Cr - PT ASSIST
Manbhum Home Treeby ManbhumJeedimetla, Hyderabad₹ 71.87 L - ₹ 1.06 Cr - PT ASSIST
Maheshwari Shree Indira Sadanby Maheshwari ConstructionsAlwal, HyderabadPrice on request - PT ASSIST
BJ Anu Recidencyby BJ ConstructionAlwal, HyderabadPrice on request - PT ASSIST
Asbl Landmarkby ASBLKukatpally, Hyderabad₹ 1.32 Cr - ₹ 2.29 Cr
Discuss about Aakruthi Shantiniketan
comment
Disclaimer
PropTiger.com is not marketing this real estate project (“Project”) and is not acting on behalf of the developer of this Project. The Project has been displayed for information purposes only. The information displayed here is not provided by the developer and hence shall not be construed as an offer for sale or an advertisement for sale by PropTiger.com or by the developer.
The information and data published herein with respect to this Project are collected from publicly available sources. PropTiger.com does not validate or confirm the veracity of the information or guarantee its authenticity or the compliance of the Project with applicable law in particular the Real Estate (Regulation and Development) Act, 2016 (“Act”). Read Disclaimer
The information and data published herein with respect to this Project are collected from publicly available sources. PropTiger.com does not validate or confirm the veracity of the information or guarantee its authenticity or the compliance of the Project with applicable law in particular the Real Estate (Regulation and Development) Act, 2016 (“Act”). Read Disclaimer





























