
Moghal Muskaan
Price on request
Builder Price
2, 3 BHK
Apartment
645 - 1,135 sq ft
Builtup area
Project Location
Mehdipatnam, Hyderabad
Overview
- Sep'11Possession Start Date
- CompletedStatus
- 40Total Launched apartments
- Jul'10Launch Date
- ResaleAvailability
Salient Features
- Moghal Muskaan is one of the popular residential developments in Erragadda.
- It has lavish yet thoughtfully designed residences.
More about Moghal Muskaan
Hyderabad is a developing city in matters of real estate. Moghal Constructions Moghal Muskaan real estate organization has developed the accommodation facility which delivers spacious 2 and 3 BHK apartments in the Mehdipatnam area. The apartments are all set for moving in and are reserved with lots of amenities like the natural surroundings, the lush green garden and intercom facility, along with 24 hours security system. This project offers a luxurious experience of living in a modern society. ...read more
Approved for Home loans from following banks
![HDFC (5244) HDFC (5244)]()
![Axis Bank Axis Bank]()
![PNB Housing PNB Housing]()
![Indiabulls Indiabulls]()
![Citibank Citibank]()
![DHFL DHFL]()
![L&T Housing (DSA_LOSOT) L&T Housing (DSA_LOSOT)]()
![IIFL IIFL]()
- + 3 more banksshow less
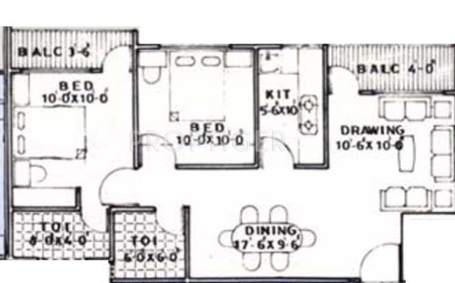
Moghal Muskaan Floor Plans
Report Error
Our Picks
- PriceConfigurationPossession
- Current Project
Moghal Muskaanby Moghal ConstructionsMehdipatnam, HyderabadData Not Available2,3 BHK Apartment645 - 1,135 sq ftSep '11 - Recommended
Halcyonby Phoenix GroupFilm Nagar, HyderabadData Not Available3,4,5 BHK Apartment3,537 - 7,757 sq ftNov '20 - Recommended
GVK Skycityby DSR SSC Builders And DevelopersSomajiguda, HyderabadData Not Available4 BHK Apartment4,222 - 5,555 sq ftDec '24
Moghal Muskaan Amenities
- Car Parking
- Lift Available
- Power Backup
- 24X7 Water Supply
Gallery
Moghal MuskaanElevation
Moghal MuskaanFloor Plans
Moghal MuskaanNeighbourhood
Contact NRI Helpdesk on
Whatsapp(Chat Only)
Whatsapp(Chat Only)
+91-96939-69347
Contact Helpdesk on
Whatsapp(Chat Only)
Whatsapp(Chat Only)
+91-96939-69347
About Moghal Constructions

- 39
Years of Experience - 14
Total Projects - 0
Ongoing Projects - RERA ID
Similar Projects
- PT ASSIST
Phoenix Halcyonby Phoenix GroupFilm Nagar, HyderabadPrice on request - PT ASSIST
DSR SSC GVK Skycityby DSR SSC Builders And DevelopersSomajiguda, HyderabadPrice on request - PT ASSIST
Ambience Courtyardby Koncept AmbienceManikonda, Hyderabad₹ 88.37 L - ₹ 2.20 Cr - PT ASSIST
The Legacey By Ananda Homesby Ananda HomesManikonda, Hyderabad₹ 1.09 Cr - ₹ 1.87 Cr - PT ASSIST
The Vue Residencesby RAGHURAM PRADEEPPuppalaguda, Hyderabad₹ 1.35 Cr - ₹ 3.83 Cr
Discuss about Moghal Muskaan
comment
Disclaimer
PropTiger.com is not marketing this real estate project (“Project”) and is not acting on behalf of the developer of this Project. The Project has been displayed for information purposes only. The information displayed here is not provided by the developer and hence shall not be construed as an offer for sale or an advertisement for sale by PropTiger.com or by the developer.
The information and data published herein with respect to this Project are collected from publicly available sources. PropTiger.com does not validate or confirm the veracity of the information or guarantee its authenticity or the compliance of the Project with applicable law in particular the Real Estate (Regulation and Development) Act, 2016 (“Act”). Read Disclaimer
The information and data published herein with respect to this Project are collected from publicly available sources. PropTiger.com does not validate or confirm the veracity of the information or guarantee its authenticity or the compliance of the Project with applicable law in particular the Real Estate (Regulation and Development) Act, 2016 (“Act”). Read Disclaimer




































