


- Possession Start DateMay'17
- StatusCompleted
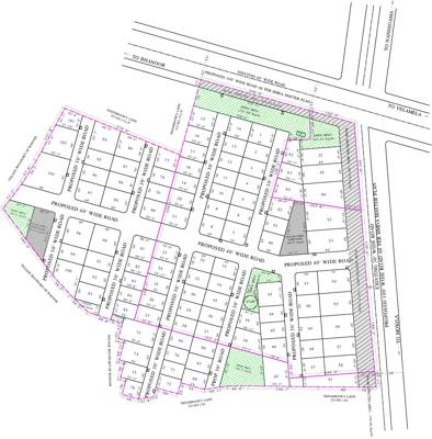
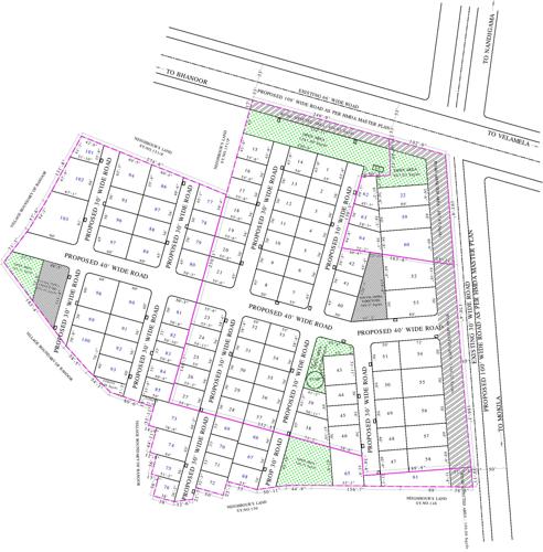
- Total Area4 Acres
- Total Launched plots103
- Launch DateJul'16
- AvailabilityResale
- RERA IDP01100001097, P01100001256, P02500001838
Salient Features
- 3 open side properties, spacious properties
- Landscaped gardens, swimming pool, olympic size swimming pool, tree plantation are some of the prominent amenities
- Schools, recreational, hospitals in close vicinity
- 90 minutes driving distance from the airport, 30 minutes driving distance from the lingampally railway station
More about SRR Gachibowli Paradise
Located in Bhanur, Hyderabad, Gachibowli Paradise is a premium housing project launched by SRR Fortune Infra. These units in Hyderabad West, are available at an attractive price points starting at @Rs 833 per sqft and will be available to buyers at a starting price of Rs 13.74 lacs. The project is Under Construction project and possession in Jun 17. Gachibowli Paradise has many amenities, such as Clear Title, Underground Drainage, Avenue Plantation With Tree Guards, Compound Wall With Entrance A...View more
![HDFC (5244) HDFC (5244)]()
![Axis Bank Axis Bank]()
![PNB Housing PNB Housing]()
![Indiabulls Indiabulls]()
![Citibank Citibank]()
![DHFL DHFL]()
![L&T Housing (DSA_LOSOT) L&T Housing (DSA_LOSOT)]()
![IIFL IIFL]()
- + 3 more banksshow less
SRR Gachibowli Paradise Price List
| Area | Price |
|---|---|
| 1600 sq ft | - |
| 1650 sq ft | - |
| 1980 sq ft | - |
| 2250 sq ft | - |
| 2365 sq ft | - |
| 2500 sq ft | - |
| 2576 sq ft | - |
| 2700 sq ft | - |
| 2752 sq ft | - |
| 3600 sq ft | - |
| 3720 sq ft | - |
| 4422 sq ft | - |
| 4450 sq ft | - |
| 7290 sq ft | - |
- 24 X 7 Security
- Power Backup
- Swimming_Pool
- Car Parking
- Gymnasium
- Children's play area
- Club_House
- CCTV
- Gated Community
- 24 Hours Water Supply
- Fire Fighting System
- Landscape Garden and Tree Planting
- Street Lighting
SRR Gachibowli Paradise Gallery
About SRR Fortune Infra

- Total Projects13
- Ongoing Projects3



























