India's best property portal to buy property in India - Proptiger.com
Possession : Dec'25
Rera
Ashirbad Porichoy
₹ 44.25 L - ₹ 47.58 L
Builder Price
Home Loan EMI starts at ₹ 34,308
Configuration
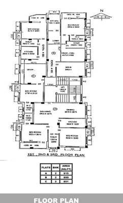
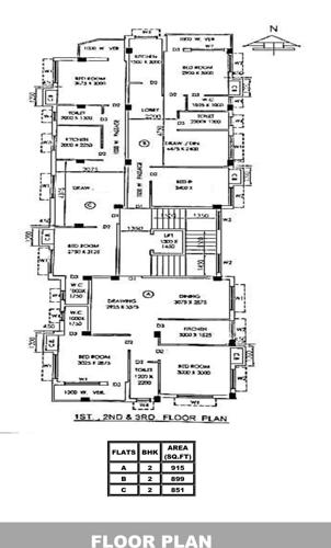
2 BHK
Builtup area1 sq M = 10.76 sq ft
851 - 915 sq ft
Possession Status
Under Construction
Avg. Price
₹ 5,200 sq.ft
Overview
  • Possession Start Date
    Dec'25
  • Status
    Under Construction
  • Total Area
    0.08 Acres
  • Total Launched apartments
    9
  • Launch Date
    Jun'24
  • Availability
    New and Resale
  • RERA ID
    WBRERA/P/KOL/2024/001615

Project Specifications

Flooring
Kitchen:
Vitrified Tiles
Living/Dining:
Vitrified Tiles
Master Bedroom:
Vitrified Tiles
Other Bedroom:
Vitrified Tiles
Toilets:
Anti Skid Ceramic Tiles
Others
Wiring:
Concealed Copper Wiring with Adequate Points
Points:
Kitchen
Switches:
Modular electrical switches
Frame Structure:
Earthquake resistant RCC framed structure
Ashirbad Porichoy Floor Plans
  • 2 BHK
₹ 44.25 L
Ashirbad Porichoy Amenities

About Ashirbad Reality

  • Total Projects5
  • Ongoing Projects3

More projects by Ashirbad Reality

Similar Projects

Developer Network

  • 400+
    Reputed Developers