India's best property portal to buy property in India - Proptiger.com
Possession : Dec'15
Happy Regency
Price on request
Builder Price
Configuration
3, 5 BHK
Builtup area1 sq M = 10.76 sq ft
1,480 - 2,960 sq ft
Possession Status
Completed
Overview
  • Possession Start Date
    Dec'15
  • Status
    Completed
  • Total Launched apartments
    10
  • Launch Date
    Dec'12
  • Availability
    Resale

More about Happy Regency

Happy Bengal Promoters new residential project Happy Regency located at Lake avenue kolkata. Happy Regency host 3BHK luxurious apartments with all modern amenities.

Approved for Home loans from following banks
  • HDFC (5244)
  • Axis Bank
  • PNB Housing
  • Indiabulls
  • Citibank
  • L&T Housing (DSA_LOSOT)
  • IIFL
  • + 2 more banksshow less

Project Specifications

Doors
Internal:
Decorative with Wooden Frame
Flooring
Balcony:
Anti Skid Tiles
Kitchen:
Anti Skid Tiles
Living/Dining:
Marble Granite Tiles
Master Bedroom:
Wooden Flooring
Other Bedroom:
Marble Granite Tiles
Toilets:
Anti Skid Tiles
Others
Windows:
Powder Coated Aluminium Sliding
Fittings
Kitchen:
Granite Platform with Stainless Steel Sink and Drain Board
Toilets:
Sanitary Fittings
Walls
Exterior:
Weather Proof Paint
Interior:
Cement Based Paint
Kitchen:
Glazed Tiles Dado up to 2 Feet Height Above Platform
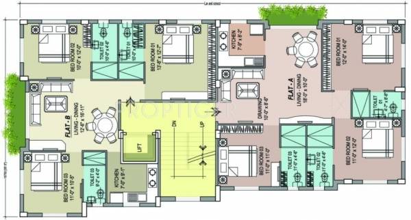
Happy Regency Floor Plans
  • 3 BHK
  • 5 BHK
-
-
Happy Regency Amenities

About Happy Bengal Promoters

Happy Bengal Promoters
  • Total Projects1
  • Ongoing Projects0

More projects by Happy Bengal Promoters

Similar Projects

Developer Network

  • 400+
    Reputed Developers