India's best property portal to buy property in India - Proptiger.com
Possession : Mar'26
Nirmala Sree
₹ 44.52 L - ₹ 55.12 L
Builder Price
Home Loan EMI starts at ₹ 34,516
Configuration
2, 3 BHK
Builtup area1 sq M = 10.76 sq ft
840 - 1,040 sq ft
Possession Status
Under Construction
Avg. Price
₹ 5,300 sq.ft
Overview
  • Possession Start Date
    Mar'26
  • Status
    Under Construction
  • Total Launched apartments
    21
  • Launch Date
    Jan'24
  • Availability
    New and Resale

Project Specifications

Doors
Main:
Decorative Main Door
Internal:
Flush Door
Flooring
Balcony:
Anti Skid Tiles
Kitchen:
Vitrified Tiles
Living/Dining:
Vitrified Tiles
Master Bedroom:
Vitrified Tiles
Other Bedroom:
Vitrified Tiles
Toilets:
Anti Skid Tiles
Walls
Exterior:
Acrylic Paint
Toilets:
Ceramic Tiles Dado up to 7 Feet Height Above Platform
Kitchen:
Ceramic Tiles Dado up to 2 Feet Height Above Platform
Interior:
Putty on Walls
Fittings
Kitchen:
Granite Platform with Stainless Steel Sink and Drain Board
Toilets:
CP fittings
Others
Points:
Hall
Windows:
Anodized aluminium windows
Wiring:
Concealed copper wiring
Switches:
Modular switches
Frame Structure:
Earthquake resistant RCC framed structure
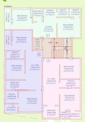
Nirmala Sree Floor Plans
  • 2 BHK
  • 3 BHK
₹ 44.52 L
₹ 55.12 L
Nirmala Sree Amenities

About AN Group Kolkata

AN Group Kolkata
  • Total Projects8
  • Ongoing Projects6

More projects by AN Group Kolkata

Similar Projects

Developer Network

  • 400+
    Reputed Developers