India's best property portal to buy property in India - Proptiger.com
Possession : Nov'25
Rera
Aikya Roots
₹ 1.25 Cr - ₹ 2.05 Cr
Builder Price
Home Loan EMI starts at ₹ 1.59 L
Configuration
1, 2 BHK
Carpet Area1 sq M = 10.76 sq ft
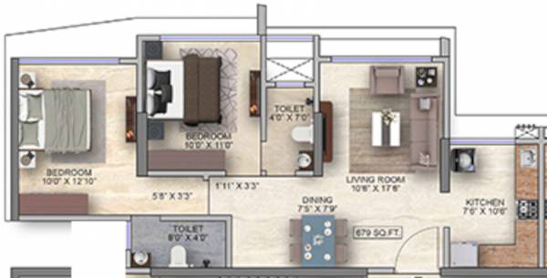
427 - 679 sq ft
Possession Status
Under Construction
Avg. Price
₹ 29,274 sq.ft
QR Image
Overview
  • Possession Start Date
    Nov'25
  • Status
    Under Construction
  • Total Area
    0.87 Acres
  • Total Launched apartments
    162
  • Launch Date
    Oct'22
  • Availability
    New
  • RERA ID
    P51800047194

Salient Features

  • 5 minutes to Momu2019s Mega Mart- 1 km
  • 6 minutes to Rcity Mall- 1.6 km
  • 4 minutes to 91 Springboard- 1.0 km
  • 7 minutes to Healthcare Nursing Home- 2.4 km

Project Specifications

Flooring
Kitchen:
Vitrified Tiles
Living/Dining:
Vitrified Tiles
Master Bedroom:
Vitrified Tiles
Other Bedroom:
Vitrified Tiles
Walls
Interior:
Acrylic Emulsion Paint
Kitchen:
Ceramic Tiles Dado up to 2 Feet Height Above Platform
Exterior:
Texture Paint
Others
Switches:
Anchor/Roma Switches
Points:
Kitchen
Windows:
UPVC / Aluminium Windows
Doors
Internal:
Flush Door
Main:
Hard Wood Frame
Fittings
Toilets:
CP Fittings of Jaquar / Marc or Equivalent
Kitchen:
Granite platform
Aikya Roots Floor Plans
  • 1 BHK
  • 2 BHK
₹ 1.25 Cr
₹ 1.75 Cr
Aikya Roots Amenities

About Aikya Realty

  • Total Projects4
  • Ongoing Projects1
Located in Mahalaxmi, Mumbai, Aikya Realty is a real estate company which was incorporated in 2014. It was created with the vision to build perfection in quality living. At Aikya Realty, we believe that homes shape our past, present and future, so why should we compromise with that? Our vision gives us the purpose to build projects that people would not only admire for the next 100 years but will also take pride in. For us, it’s about giving way to a lifestyle the way no one has. Si...
View more

More projects by Aikya Realty

Similar Projects

Developer Network

  • 400+
    Reputed Developers