5 BHK Villa
On request



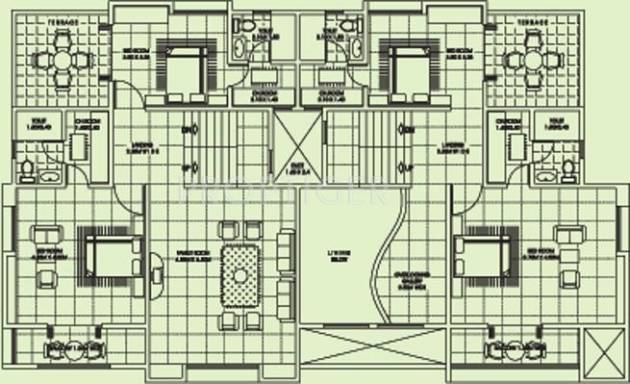
Lanke Birje Associates has launched its premium housing project, Basil II, in Baner, Pune. Among the many luxurious amenities that the project hosts are Landscaped Gardens, Individual video door phone security system, Gymnasium, Solar system, Jogging Track etc. Lanke Birje Associates Basil II is Completed project and possession in Apr 12.








