
Builders Square
Price on request
Builder Price
2 BHK
Apartment
641 - 663 sq ft
Carpet Area
Project Location
Bavdhan, Pune
Overview
- Dec'13Possession Start Date
- CompletedStatus
- 10Total Launched apartments
- Mar'12Launch Date
- ResaleAvailability
More about Builders Square
Located in Bavdhan, Pune, Square is a premium housing project launched by Builders Combine. The project offers Apartment in 2 BHK configurations available from 641 sqft to 663 sqft. The project is Completed project and possession in Dec 13. Square has many amenities, such as Security, Solar Water Heating System etc.
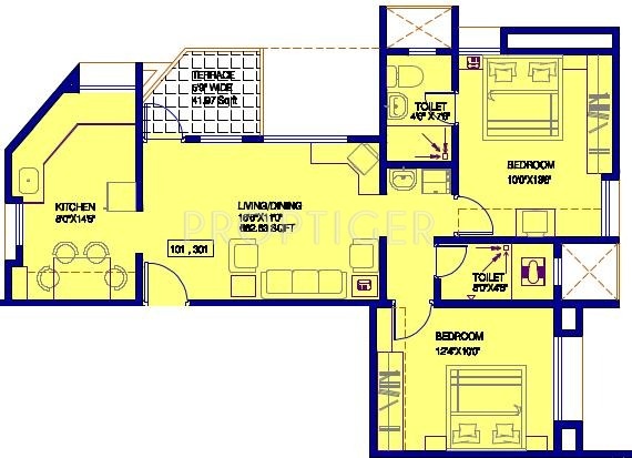
Builders Square Floor Plans
Report Error
Our Picks
- PriceConfigurationPossession
- Current Project
Builders Squareby Builders CombineBavdhan, PuneData Not Available2 BHK Apartment641 - 663 sq ftDec '13 - Recommended
Ganga Legend B2by Goel Ganga GroupBavdhan, Pune₹ 66.02 L - ₹ 92.65 L2 BHK Apartment551 - 773 sq ftNov '24 - Recommended
Ganga Legend A4 And B1by Goel Ganga GroupBavdhan, Pune₹ 66.02 L - ₹ 92.65 L2,3 BHK Apartment452 - 1,021 sq ftNov '27
Builders Square Amenities
- Security
- Solar Water Heating
Builders Square Specifications
Doors
Internal:
Laminated Flush Door
Main:
Decorative Laminate
Flooring
Balcony:
Anti Skid Tiles
Kitchen:
Vitrified Tiles
Living/Dining:
Vitrified Tiles
Master Bedroom:
Vitrified Tiles
Other Bedroom:
Vitrified Tiles
Toilets:
Anti Skid Tiles
Gallery
Builders SquareElevation
Builders SquareFloor Plans
Builders SquareNeighbourhood
Contact NRI Helpdesk on
Whatsapp(Chat Only)
Whatsapp(Chat Only)
+91-96939-69347
Contact Helpdesk on
Whatsapp(Chat Only)
Whatsapp(Chat Only)
+91-96939-69347
About Builders Combine

- 22
Years of Experience - 5
Total Projects - 0
Ongoing Projects - RERA ID
Similar Projects
- PT ASSIST
Goel Ganga Legend B2by Goel Ganga GroupBavdhan, Pune₹ 66.02 L - ₹ 92.65 L - PT ASSIST
Goel Ganga Legend A4 And B1by Goel Ganga GroupBavdhan, PunePrice on request - PT ASSIST
Oree Code name Real Bhavdhanby Oree ReailtyBavdhan, Pune₹ 74.79 L - ₹ 1.50 Cr - PT ASSIST
Goel Ganga Legend Building A1by Goel Ganga GroupBavdhan, PunePrice on request - PT ASSIST
Tayal K Pune Bavdhanby Tayal CorpBavdhan, Pune₹ 1.00 Cr - ₹ 2.22 Cr
Discuss about Builders Square
comment
Disclaimer
PropTiger.com is not marketing this real estate project (“Project”) and is not acting on behalf of the developer of this Project. The Project has been displayed for information purposes only. The information displayed here is not provided by the developer and hence shall not be construed as an offer for sale or an advertisement for sale by PropTiger.com or by the developer.
The information and data published herein with respect to this Project are collected from publicly available sources. PropTiger.com does not validate or confirm the veracity of the information or guarantee its authenticity or the compliance of the Project with applicable law in particular the Real Estate (Regulation and Development) Act, 2016 (“Act”). Read Disclaimer
The information and data published herein with respect to this Project are collected from publicly available sources. PropTiger.com does not validate or confirm the veracity of the information or guarantee its authenticity or the compliance of the Project with applicable law in particular the Real Estate (Regulation and Development) Act, 2016 (“Act”). Read Disclaimer




















