


- Possession Start DateFeb'16
- StatusCompleted
- Total Area2 Acres
- Total Launched apartments229
- Launch DateJul'13
- AvailabilityResale
- RERA IDP52100000564, P52100000306, P52100008951, P52100000094, P52100029194, P52100029382
Salient Features
- Close to the Bhosari and Chakan Industrial Belts
- International Exhibition & Convention Center - 10 min
- Talewade IT Park - 10 min
- Disney Play School - 2 min
More about Mantra Moments
Mantra Moments project is registered on rera with following RERA Ids:-P52100000094(Mantra Moments Phase 2), P52100000306(Mantra Moments Phase 4 ),P52100008951(Mantra Moments Phase 5). The new project of the Mantra Properties Moments Residency Company is being instigated at Moshi, which is situated in Pune. This project is ready to move in. The neighbourhood has all the necessary destinations like school, hospital, metro station, petrol pump, hospital, bank, ATM, market, bus stand, park, etc. Thi...View more
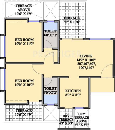
Project Specifications
- 1 BHK
- 2 BHK
- Gymnasium
- Swimming Pool
- Children's play area
- Club House
- Multipurpose Room
- Sports Facility
- 24 X 7 Security
- Power Backup
- Cafeteria
- Jogging Track
- Board Game Room
- Tennis Court
- Guard House
- Lift Available
- Rain Water Harvesting
- Car Parking
- Vaastu Compliant
- Staff Quarter
- Shopping Mall
- School
- Hospital
- ATM
- Community Hall
- Gated Community
- Indoor Games
- Basketball Court
- Amphitheater
- 24 Hours Water Supply
- Fire Fighting System
- Utility Shops
- Library
- Sewage Treatment Plant
- Landscape Garden and Tree Planting
- Yoga/Meditation Area
- Billiards/Snooker Table
- Street Lighting
- Barbecue Area
- Vertical Garden
- Terrace Garden
- Water Sports
- Water Softner Plant
- Entrance Lobby
- Table Tennis
- Letter Box
Mantra Moments Gallery
Payment Plans

About Mantra Properties

- Years of experience25
- Total Projects130
- Ongoing Projects60

























