


- Possession Start DateNov'22
- StatusCompleted
- Total Launched apartments417
- Launch DateNov'14
- AvailabilityResale
- RERA IDP52100001358
Salient Features
- Connectivity with IT hub Hinjewadi and industries in PCMC
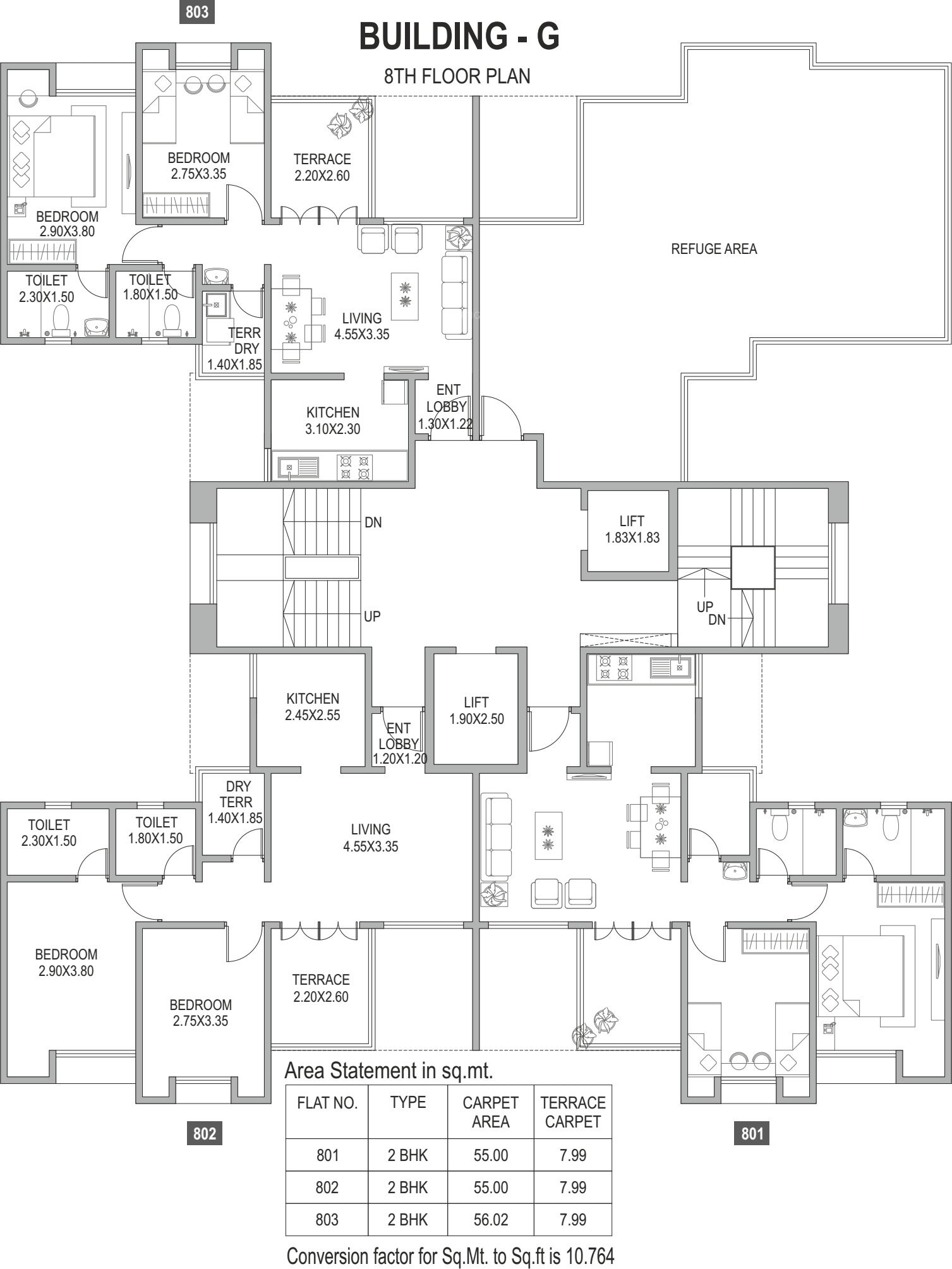
- Paranjape richmond park has a total of 8 towers
- The project is spread over a total area of 3.64 acres of land
- 2 level parking space is available
- Providing attractive entrance lobbies
More about Paranjape Richmond Park
Richmond Park Pune is an initiative by Paranjape Schemes and comes with premium 2 BHK and 3 BHK apartments. Areas like Wakad, Aundh and Baner are well connected to the project and it offers several amenities to residents including a gymnasium, landscaped gardens, swimming pool, car parking facilities, club house, indoor game facilities and a beautiful entrance lobby. Situated at Rahatani, the project is well linked to several areas like Kalewadi Phata, Pimple Saudagar, Hinjewadi, Kaveri Nagar, N...View more
![HDFC (5244) HDFC (5244)]()
![Axis Bank Axis Bank]()
![PNB Housing PNB Housing]()
![Indiabulls Indiabulls]()
![Citibank Citibank]()
![DHFL DHFL]()
![L&T Housing (DSA_LOSOT) L&T Housing (DSA_LOSOT)]()
![IIFL IIFL]()
- + 3 more banksshow less
Project Specifications
- 1 BHK
- 2 BHK
- 3 BHK
- Gymnasium
- Swimming Pool
- Club House
- Indoor Games
- Car Parking
- Cctv
- Jogging Track
- Power Backup
- Lift(s)
- Closed_Car_Parking
- Gated Community
- Children's play area
- Intercom
- Rain Water Harvesting
- Shopping Mall
- 24 Hours Water Supply
- Landscaped Gardens
- Fire Fighting System
- Sewage Treatment Plant
- Landscape Garden and Tree Planting
- Entrance Lobby
- Party Lawn
- Video Door Security
- Paved Compound
- Garbage Disposal
- Street Lighting
- Water Supply
- Flower Garden
- Reserved Parking
- Aggregate area of recreational Open Space
Paranjape Richmond Park Gallery
Payment Plans

About Paranjape Schemes

- Years of experience39
- Total Projects99
- Ongoing Projects30































