


- Possession Start DateNov'17
- StatusCompleted
- Total Launched apartments8
- Launch DateNov'16
- AvailabilityResale
More about Sri Dhatri Ivy Crest
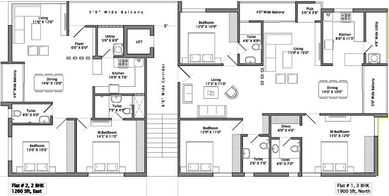
Sri Dhatri has launched its premium housing project, Ivy Crest, in Manikonda, Hyderabad. The project offers 2, 3 BHK Apartment from 1260 sqft to 1900 sqft in Hyderabad West. Among the many luxurious amenities that the project hosts are Wired Internet, Corridor Lighting, Wireless Router Connectivity, Lift Available, Rain Water Harvesting etc. Starting at @Rs 3,000 per sqft,Apartment are available for sale from Rs 37.80 lacs. Sri Dhatri Ivy Crest is Under Construction project and possession in Jul...View more
![HDFC (5244) HDFC (5244)]()
![Axis Bank Axis Bank]()
![PNB Housing PNB Housing]()
![Indiabulls Indiabulls]()
![Citibank Citibank]()
![DHFL DHFL]()
![L&T Housing (DSA_LOSOT) L&T Housing (DSA_LOSOT)]()
![IIFL IIFL]()
- + 3 more banksshow less
Project Specifications
- 2 BHK
- 3 BHK
- Children's play area
- Rain Water Harvesting
- Car Parking
- Intercom
- Power Backup
- Lift Available
- Corridor Lighting
- Cctv
- 24X7 Water Supply
- Wired Internet
- Wireless Router Connectivity
- Air Conditioners
- Landscape Garden and Tree Planting
- Paved Compound
Sri Dhatri Ivy Crest Gallery
About Sri Dhatri

- Total Projects5
- Ongoing Projects0




























