


- Possession Start DateApr'15
- StatusCompleted
- Total Launched apartments32
- Launch DateJan'13
- AvailabilityResale
More about Krishna Maithree Residency
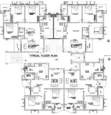
Maithree Residency by Krishna Homes, located in Poonkunnam, Thrissur, offers 2BHK and 3BHK apartments with the price being on request. There are a total of 28 units, with the apartment sizes ranging from 1200 sq ft to 1395 sq ft. The amenities include rainwater harvesting, 24x7 security, power backup, gymnasium, intercom, modern fire safety system, bore well, water storage, sewage treatment system, housing society room, cable TV, and 24 hours water supply. Situated in suburb Thrissur Central, Po...View more
Project Specifications
- 2 BHK
- 3 BHK
- Rain Water Harvesting
- 24 X 7 Security
- Power Backup
- Gymnasium
- Intercom
- Fire Fighting System
- Housing Society Room
- Bore Well
- Cable TV
- Sewage Treatment Plant
- Water Storage
- Water Supply
Krishna Maithree Residency Gallery
About Krishna Homes

- Total Projects14
- Ongoing Projects0












